Từ khóa “MẶT BẰNG LAYOUT CĂN HỘ KIỀU BY KITA” đang tạo nên cơn sốt thật sự trong giới bất động sản TP.HCM hiện nay, khiến cả nhà đầu tư lẫn người mua nhà đều “đứng ngồi không yên”. Vậy điều gì khiến một dự án chỉ vỏn vẹn 82 căn hộ giới hạn lại được săn đón đến vậy giữa thị trường sôi động này?
Bí mật nằm ở không gian sống bên trong Kiều by Kita – nơi kiến trúc Pháp cổ điển được hòa quyện tinh tế với phong cách hiện đại, tạo nên vẻ đẹp sang trọng mà vẫn gần gũi. Mỗi căn hộ đều được tối ưu ánh sáng tự nhiên, tầm nhìn thoáng đãng, mang đến cảm giác thư thái và riêng tư hiếm có giữa lòng đô thị.
Không dừng lại ở đó, hệ thống tiện ích đẳng cấp như hồ bơi tràn bờ, phòng gym, khu vườn trên cao, sảnh đón chuẩn 5 sao… giúp cư dân tận hưởng trọn vẹn phong cách sống tinh tế và khác biệt. Tất cả được đặt trong vị trí vàng 927 Trần Hưng Đạo, Quận 5 – trung tâm sầm uất nhưng vẫn giữ được sự yên bình và riêng tư hiếm hoi.
Với vai trò đơn vị phân phối uy tín, Tường Phát Land sẽ cùng bạn khám phá toàn bộ MẶT BẰNG LAYOUT CĂN HỘ KIỀU BY KITA, để hiểu vì sao dự án này được ví như kiệt tác sống đáng mơ ước nhất năm nay.

1. MẶT BẰNG LAYOUT CĂN HỘ KIỀU BY KITA QUẬN 5 – Thiết Kế Thông Minh, Tối Ưu Không Gian Sống
Mặt bằng layout căn hộ Kiều By KITA được thiết kế với sự tính toán tỉ mỉ trong từng chi tiết, từ hướng gió, ánh sáng cho đến cách bố trí công năng. Đây chính là “trái tim” của toàn dự án, quyết định trải nghiệm sống boutique đích thực mà chủ đầu tư hướng tới trong năm nay.
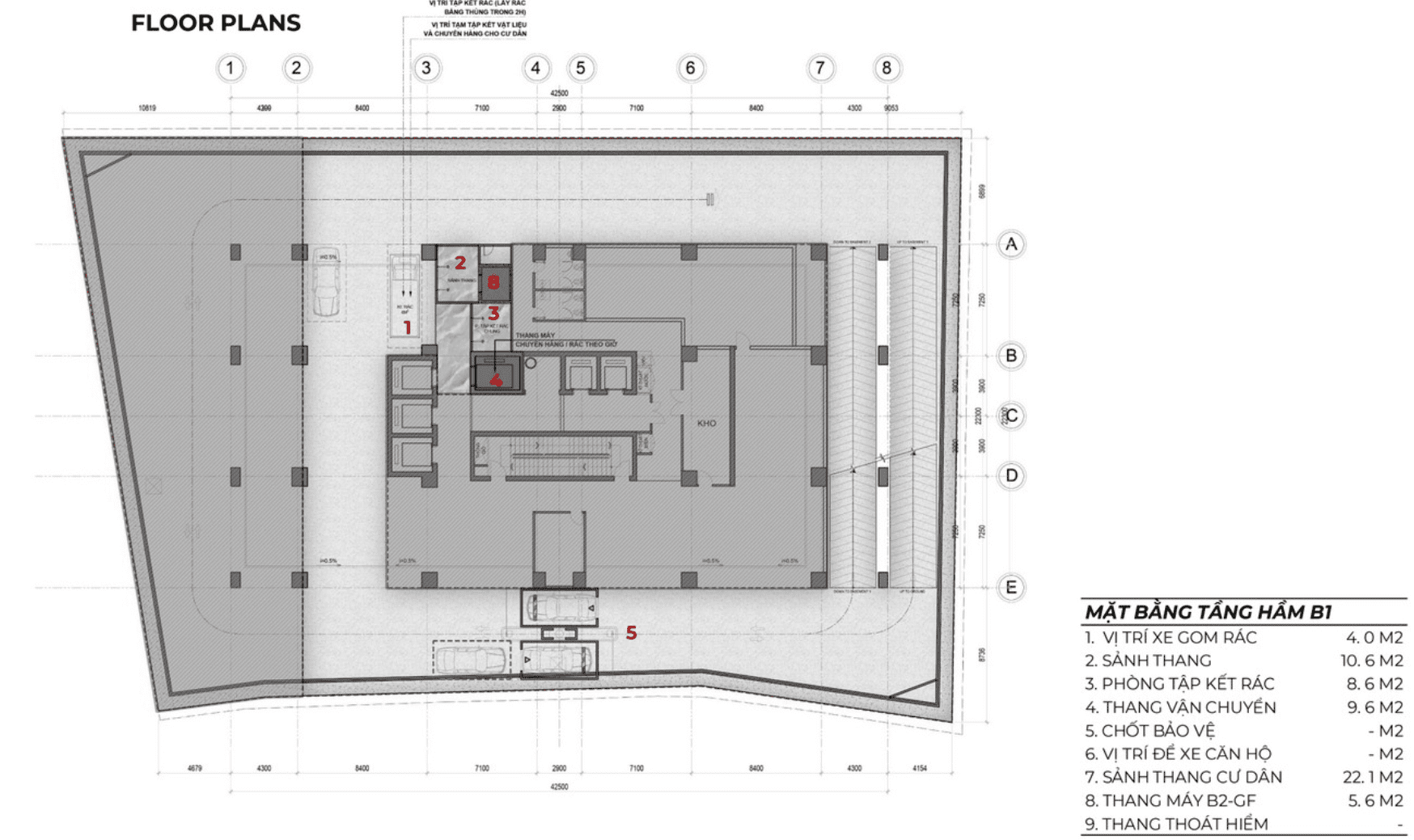
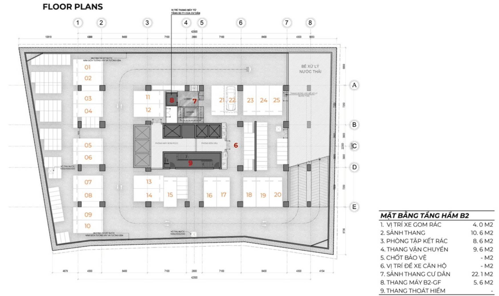
Mặt bằng tầng hầm B1 – B2 và mặt bằng tầng trệt
Điểm đặc biệt đầu tiên nằm ở sự phân chia hợp lý giữa các khối chức năng, giúp toàn bộ công trình vận hành trơn tru mà không xảy ra xung đột giữa cư dân và khối thương mại. Hai tầng hầm B1 – B2 được quy hoạch làm bãi đỗ xe thông minh với sức chứa hơn 200 ô tô và 500 xe máy, có hệ thống cảm biến dẫn đường và thang nâng tự động, đảm bảo cư dân di chuyển nhanh chóng, an toàn. Ngay phía trên là tầng 1 – khu sảnh đón sang trọng được thiết kế theo phong cách khách sạn boutique châu Âu, kết hợp không gian giao dịch của ngân hàng SCB, vừa tiện ích vừa tăng tính thương mại cho dự án.



Mặt bằng từ tầng 12 – tầng 13
Từ tầng 2 đến tầng 11, khu văn phòng hạng A được bố trí riêng biệt, có sảnh đón và thang máy độc lập, giúp hoàn toàn tách biệt với khu căn hộ phía trên. Cách sắp xếp này thể hiện rõ triết lý “không gian đa tầng – chức năng riêng biệt” của đội ngũ kiến trúc sư Ong & Ong, giúp cư dân vẫn giữ được sự yên tĩnh dù sống ngay trung tâm.
Đến tầng 12A và 12B, đây được xem như “trái tim tiện ích” của dự án. Tầng 12A được thiết kế cho sức khỏe và tinh thần với phòng gym, yoga, sauna, khu co-working space và kidroom cho trẻ em. Trong khi đó, tầng 12B mở ra không gian giải trí sang trọng với hồ bơi skyview vô cực rộng gần 500m², sky garden phủ xanh hơn 600m², phòng yến tiệc 100m², và cigar lounge riêng tư cho giới doanh nhân. Cư dân có thể tận hưởng trọn vẹn cuộc sống tiện nghi ngay trong tòa nhà mà không cần di chuyển xa.


Mặt bằng từ tầng 14 đến tầng 26
Từ tầng 14 đến tầng 23, khu căn hộ điển hình được bố trí chỉ 7 căn mỗi tầng, trong đó có 4 căn góc view đôi, đảm bảo hành lang rộng 2 mét, thang máy tốc độ cao và khoảng cách riêng tư giữa các hộ. Đây là mật độ rất thấp so với các dự án cùng khu vực, giúp hạn chế tiếng ồn và tạo cảm giác như sống trong một khu nghỉ dưỡng riêng.


Lên đến tầng 24 và 25, không gian được nâng tầm với 8 căn duplex thông tầng. Mỗi căn đều có phòng khách trần cao 6 mét, cầu thang nội bộ và ban công loggia rộng 3–5m². Tầng cao nhất – 26 và 27 – là 4 căn penthouse sang trọng, diện tích lên đến 350m², mỗi căn có hồ bơi riêng 50m², sân thượng lát đá tự nhiên và hệ thống ánh sáng điều khiển bằng AI.


Toàn bộ layout của dự án tuân theo nguyên tắc “luồng khí lưu thông” – yếu tố phong thủy được tính toán kỹ. Ở giữa tòa nhà là giếng trời lớn, cho phép ánh sáng tự nhiên chiếu xuống sảnh tầng và lưu thông không khí liên tục. Khoảng 80% diện tích căn hộ có thể nhận nắng và gió tự nhiên suốt ngày, giảm thiểu chi phí điện năng và tạo cảm giác dễ chịu hơn hẳn so với các dự án kín khối bê tông khác.
Hiện nay, dự án còn được cập nhật hệ thống Smart Home tích hợp AI, cho phép cư dân điều khiển đèn, rèm, điều hòa, hệ thống an ninh chỉ bằng một chạm trên ứng dụng điện thoại. Kiều by KITA cũng đạt tiêu chuẩn LEED xanh quốc tế, hướng tới lối sống bền vững và tiết kiệm năng lượng.
Khi so sánh với những dự án lân cận, layout của Kiều by KITA thể hiện rõ sự vượt trội: mật độ cư dân thấp hơn 30%, tiếng ồn giảm 25–30%, và góc nhìn view sông hoặc trung tâm mở rộng hơn 50%. Các căn góc hướng Đông Nam được khuyên chọn vì hướng này đón gió mát, tránh nắng gắt và tiết kiệm năng lượng điều hòa.
Tổng thể, mặt bằng layout căn hộ Kiều By KITA quận 5 là sự hòa quyện giữa công năng và cảm xúc – nơi từng mét vuông đều được tận dụng để phục vụ cuộc sống tiện nghi, riêng tư và đẳng cấp. Trong bối cảnh Quận 5 đang được quy hoạch trở thành “trung tâm tài chính – thương mại mới” của thành phố năm 2025, dự án này không chỉ mang giá trị an cư mà còn là một tài sản sinh lời bền vững cho tương lai.
2. Thiết kế nội thất và layout chi tiết các loại căn hộ Kiều By Kita
Thiết kế nội thất tại Kiều by Kita được cá nhân hóa, kết hợp tinh hoa Á Đông và châu Âu, tạo nên layout đa dạng phù hợp mọi nhu cầu gia đình. Mỗi loại căn hộ đều được tối ưu hóa để mang lại sự thoải mái tối đa, từ không gian mở đến chi tiết tinh tế.

Căn hộ 2 phòng ngủ – Gọn gàng, tiện nghi, dành cho gia đình trẻ
Các căn 2 phòng ngủ tại Kiều by KITA có diện tích khoảng 90m² (thông thủy 85,6m²), được thiết kế tối ưu cho cặp vợ chồng trẻ hoặc gia đình nhỏ. Không gian sinh hoạt chung gồm phòng khách liền bếp rộng khoảng 35m², có đảo bar trung tâm vừa dùng để nấu ăn, vừa là nơi trò chuyện, thưởng thức cà phê buổi sáng. Hai phòng ngủ đều hướng ra ban công, trong đó phòng master có view sông thoáng mát và phòng tắm riêng có bồn tắm hiện đại. Ban công rộng 4m² hướng Đông, đón nắng sớm nhẹ nhàng, giúp căn hộ luôn sáng và dễ chịu. Nội thất bàn giao cao cấp, sàn lát đá chống trơn, hệ thống chiếu sáng âm trần và cửa kính trượt chống ồn. Đây là dòng căn hộ mang phong cách trẻ trung, gọn gàng nhưng vẫn sang trọng – đúng tinh thần “boutique living” mà dự án hướng đến.

Căn hộ 3 phòng ngủ – Rộng rãi, linh hoạt cho gia đình đa thế hệ
Loại căn hộ 3 phòng ngủ là dòng sản phẩm chủ lực của dự án, chiếm khoảng 50 căn với diện tích từ 128 đến 155m². Layout căn hộ được thiết kế rất hợp lý: phòng khách trung tâm rộng gần 40m², kết nối liền mạch với phòng ăn và khu bếp island, tạo không gian mở giúp cả gia đình dễ dàng sinh hoạt cùng nhau. Ba phòng ngủ được bố trí tách biệt, đảm bảo sự riêng tư. Phòng ngủ chính có diện tích khoảng 20m², tích hợp phòng thay đồ (walk-in closet) và WC riêng. Hai phòng ngủ phụ dùng chung một phòng tắm nhưng vẫn có cửa sổ đón sáng.
Đặc biệt, phiên bản căn 155m² có thêm phòng đa năng, có thể dùng làm phòng làm việc tại nhà (home office) hoặc phòng đọc sách – một điểm cộng lớn trong thời đại “work-from-home” ngày nay. Tất cả các căn hộ đều được bàn giao hoàn thiện với nội thất chất lượng cao: bếp, tủ âm tường, hệ thống máy lạnh trung tâm và rèm điện thông minh.


Căn hộ Duplex – Không gian thông tầng sang trọng
Các căn Duplex tại tầng 24–25 có diện tích từ 176 đến 241m², được ví như những “biệt thự treo” giữa bầu trời. Layout được chia thành hai tầng thông thoáng: tầng dưới là khu sinh hoạt chung rộng khoảng 100m², gồm phòng khách, phòng ăn, bếp mở và khu lounge thư giãn; tầng trên là hai phòng ngủ master có view 360 độ toàn thành phố. Cầu thang nội bộ rộng 1,5m, tay vịn kính trong suốt, tạo cảm giác không gian liền mạch.
Đặc biệt, những căn Duplex lớn nhất (241m²) còn được trang bị bồn jacuzzi riêng ngoài ban công, lý tưởng cho những buổi tối thư giãn giữa không gian yên tĩnh và tầm nhìn về trung tâm Sài Gòn. Các chi tiết nội thất trong căn hộ đều được chọn lọc kỹ: gỗ sồi nhập khẩu, đá marble Ý, hệ thống điều hòa âm trần và kính chống UV hai lớp, mang lại cảm giác “nghỉ dưỡng tại nhà”.


Căn Penthouse – Biểu tượng đỉnh cao của Kiều by KITA
Căn Penthouse nằm ở tầng 26–27 là loại hình cao cấp nhất của dự án, diện tích từ 335 đến 348m². Mỗi căn được ví như một ngôi biệt thự trên mây, được thiết kế theo bố cục ba tầng logic: tầng dưới là phòng khách lớn với sky lounge rộng 80m², tầng giữa bố trí bốn phòng ngủ riêng biệt, và tầng trên cùng là rooftop garden rộng tới 100m².
Điểm nhấn của Penthouse chính là hồ bơi riêng 50m², vườn trên mái trồng rau hữu cơ, và khu BBQ ngoài trời – nơi cư dân có thể tổ chức tiệc tối trong khung cảnh nhìn xuống toàn bộ trung tâm thành phố. Không gian bên trong sử dụng vách kính trượt toàn khối, giúp đón gió sông và ánh sáng tự nhiên, đồng thời cách âm tuyệt đối. Hệ thống âm thanh Bose tích hợp, cùng smart lighting điều khiển bằng giọng nói, tạo nên một không gian sống vừa công nghệ, vừa nghệ thuật.
Theo chia sẻ của kiến trúc sư Ong & Ong, layout của Penthouse được tính toán kỹ lưỡng theo phong thủy Á Đông: khu bếp đặt hướng Nam để “tụ tài”, khu sinh hoạt chính mở về hướng Đông đón nắng sớm, mang lại năng lượng tích cực cho gia chủ. Mỗi chi tiết trong thiết kế đều nhằm tạo ra “dòng chảy năng lượng” tự nhiên, giúp không gian sống luôn hài hòa và tràn đầy sinh khí.

3. Tổng quan dự án Kiều By KITA quận 5 – Biểu tượng của sự sang trọng giới hạn
Kiều by Kita không chỉ là một dự án căn hộ mà còn là minh chứng cho tầm nhìn chiến lược của Kita Group trong việc tái định nghĩa không gian sống cao cấp tại Quận 5. Với quy mô boutique residence, dự án tập trung vào chất lượng hơn số lượng, đảm bảo mỗi cư dân đều sở hữu một “ngôi nhà thứ hai” đẳng cấp và tiện nghi.
Ra mắt từ năm 2024, Kiều by Kita nhanh chóng thu hút giới tinh hoa nhờ vị trí chiến lược và thiết kế độc quyền từ Ong & Ong (Singapore). Đến 2025, dự án đã hoàn tất toàn bộ tiến độ xây dựng, sẵn sàng bàn giao từ quý 1, với pháp lý minh bạch – sổ hồng sở hữu lâu dài từng căn.

Diện tích đất khoảng 2.682m², mật độ xây dựng chỉ 39%, phần lớn dành cho không gian xanh và tiện ích nội khu, tạo nên một “ốc đảo” yên bình giữa nhịp sống hối hả của Sài Gòn. Tổng cộng 82 căn hộ được phân bổ trên 27 tầng nổi và 2 tầng hầm, bao gồm khối văn phòng tầng thấp và khu căn hộ cao cấp từ tầng 14 trở lên, nhằm tối ưu hóa mặt bằng layout mà còn đảm bảo giá trị tăng trưởng bền vững, với mức sinh lời từ cho thuê lên đến 8-10%/năm

Từ góc nhìn của Tường Phát Land, Kiều by KITA là một dự án mang đậm dấu ấn giao thoa giữa “di sản và hiện đại”. Sự kết hợp giữa bản sắc văn hóa Quận 5 và tiêu chuẩn sống quốc tế đã tạo nên một sản phẩm bất động sản khác biệt trên thị trường. Với chính sách ưu đãi như chiết khấu đến 12% cho khách hàng thanh toán nhanh, dự án đang được xem là cơ hội đầu tư hiếm có trong năm nay.
4. Vị trí đắc địa của Kiều By KITA – Chìa khóa vàng cho giá trị tăng trưởng
Vị trí luôn là yếu tố quyết định thành bại của một dự án bất động sản, và Kiều by Kita sở hữu lợi thế vượt trội tại trung tâm Quận 5. Nằm mặt tiền đại lộ Trần Hưng Đạo – tuyến đường lịch sử 100 năm của Sài Gòn, dự án kết nối hoàn hảo với các quận lân cận, mang đến sự tiện lợi tối đa cho cư dân.
Đây được xem là “tọa độ vàng” hiếm hoi còn sót lại tại khu vực trung tâm, mọi giá trị về giao thương, văn hóa và tiềm năng phát triển đều hội tụ. Vị trí này giúp cư dân thuận tiện di chuyển, tạo ra lợi thế vượt trội về giá trị bất động sản trong tương lai.

Từ Kiều by Kita, cư dân chỉ mất vài phút để đến các tuyến đường huyết mạch như Lê Hồng Phong, Nguyễn Văn Cừ, Võ Văn Kiệt – những trục giao thông chính kết nối nhanh tới Quận 1, Quận 4, Quận 8 và khu đô thị Thủ Thiêm.
Nhờ vị trí trung tâm, cư dân có thể dễ dàng tiếp cận hệ thống tiện ích cao cấp xung quanh: từ bệnh viện Chợ Rẫy, Đại học Y Dược, chợ Bình Tây cho tới các trung tâm thương mại, nhà hàng, quán cà phê phong cách hiện đại. Trong bán kính chỉ 2–3 km, mọi nhu cầu từ học tập, chăm sóc sức khỏe đến giải trí đều được đáp ứng đầy đủ – một điểm cộng lớn mà hiếm dự án nào trong khu vực có được.

Không chỉ thuận tiện về giao thông và tiện ích, Kiều by Kita còn nằm ngay khu vực Chợ Lớn – trung tâm văn hóa Hoa – Việt lâu đời, đây cũng là vùng đất mang đậm dấu ấn lịch sử, giao thoa giữa nhịp sống hiện đại và bản sắc truyền thống. Trong bối cảnh nguồn cung căn hộ trung tâm ngày càng khan hiếm, những dự án sở hữu vị trí lõi như Kiều by Kita luôn được săn đón. Hơn nữa, khi tuyến metro số 1 và số 3A hoàn thiện và đi vào hoạt động, khu vực Quận 5 sẽ được hưởng lợi trực tiếp nhờ kết nối giao thông mở rộng, góp phần nâng giá trị bất động sản lên đáng kể.
5. Phân bố tầng và cơ cấu mặt bằng tại Kiều by KITA
Dự án Kiều by KITA được quy hoạch thông minh, phân tầng rõ ràng để tách biệt các chức năng sinh hoạt, làm việc và nghỉ dưỡng.
- Tầng hầm B2: Bãi giữ xe máy và ô tô.
- Tầng hầm B1: Bãi giữ xe cho khối văn phòng.
- Tầng 2–11: Khối văn phòng.
- Tầng 12A & 12B: Tiện ích cư dân như gym, hồ bơi, sky garden.
- Tầng 14–23: Căn hộ điển hình (2PN, 3PN) với 7 căn/sàn.
- Tầng 24–25: Căn hộ Duplex.
- Tầng 26–27: Penthouse dạng Duplex.

Cách tổ chức mặt bằng này thể hiện tư duy quy hoạch của chủ đầu tư trong việc cân bằng giữa thương mại và nghỉ dưỡng. Như vậy, mặt bằng layout mỗi tầng căn hộ ở tầng 14-23 gồm 7 căn mỗi sàn, sảnh hành lang rộng theo tiêu chuẩn khách sạn 5 sao, giúp nâng cao cảm giác riêng tư và cao cấp. Việc phân tầng rõ ràng giúp khách hàng dễ dàng lựa chọn tầng phù hợp với nhu cầu: tầng thấp hơn tiện đi lại, tầng cao hơn view đẹp hơn và thường là các loại hình cao cấp hơn.
6. Hệ thống tiện ích nội khu Kiều by KITA
Hệ thống tiện ích tại Kiều by KITA được thiết kế như một khu nghỉ dưỡng 5 sao thu nhỏ, hướng đến cuộc sống cân bằng giữa sức khỏe, thư giãn và kết nối cộng đồng. Mọi nhu cầu sinh hoạt, thể thao, giải trí hay làm việc đều có thể đáp ứng chỉ trong vài bước chân, giúp cư dân tận hưởng trọn vẹn mỗi ngày ngay trong không gian sống của mình.
Ngay tại tầng 12B, điểm nhấn nổi bật nhất chính là hồ bơi skyview vô cực rộng tới 500m², thiết kế tràn bờ hướng về sông Sài Gòn, mang lại cảm giác như đang nghỉ dưỡng giữa không trung. Hồ bơi người lớn được bố trí song song cùng hồ bơi trẻ em riêng biệt, đảm bảo an toàn và thuận tiện cho các gia đình có con nhỏ. Từ khu hồ bơi, cư dân có thể ngắm nhìn toàn cảnh thành phố với góc nhìn panorama tuyệt đẹp, đặc biệt rực rỡ vào buổi tối.

Bên cạnh đó, phòng gym hiện đại rộng 300m² được trang bị thiết bị Technogym nhập khẩu từ Ý, đáp ứng tiêu chuẩn cao nhất về tập luyện. Kế bên là phòng yoga studio thoáng sáng, nơi diễn ra các lớp học miễn phí hàng tuần do huấn luyện viên chuyên nghiệp hướng dẫn. Sau giờ tập, cư dân có thể thư giãn tại phòng sauna hồng ngoại, giúp lưu thông máu và giảm căng thẳng sau một ngày dài làm việc.

Không chỉ chú trọng sức khỏe thể chất, dự án còn quan tâm đến trẻ nhỏ và đời sống tinh thần của cư dân. Kidroom rộng 150m² là không gian vui chơi an toàn, đầy màu sắc dành cho trẻ em, có khu trò chơi ngoài trời và khu học tập sáng tạo. Ở phía trên là sky garden 200m², trồng cây hữu cơ và hoa xanh mát, mang lại cảm giác gần gũi thiên nhiên giữa trung tâm thành phố. Đặc biệt, khu vực cigar lounge được bố trí riêng, là không gian yên tĩnh, kín đáo để các doanh nhân gặp gỡ, trò chuyện hoặc thư giãn cùng ly rượu vang sau giờ làm việc.
Ngoài ra, dự án còn có phòng yến tiệc 100m² sang trọng – nơi cư dân có thể tổ chức tiệc sinh nhật, họp mặt gia đình hay sự kiện riêng tư. Với thiết kế âm thanh – ánh sáng chuẩn tiêu chuẩn khách sạn, mọi buổi tiệc đều trở nên ấm cúng và đẳng cấp. Ngay cạnh đó là khu co-working space rộng rãi với 100 chỗ ngồi, kết nối WiFi tốc độ 1Gbps, mang đến môi trường làm việc năng động cho cư dân làm việc tự do hoặc nhóm startup.

Toàn bộ không gian tiện ích được liên kết theo phong cách mở, hài hòa giữa nội thất hiện đại và cảnh quan xanh mát. Mỗi góc nhỏ đều được chăm chút, từ lối đi lát đá tự nhiên đến ánh sáng vàng ấm của hành lang, tạo cảm giác thư giãn như đang ở resort thật sự.

7. Ai nên chọn Layout nào ở Kiều by KITA
Theo góc nhìn của Tường Phát Land, việc lựa chọn loại layout phù hợp không chỉ phụ thuộc vào diện tích hay giá bán, mà còn nằm ở phong cách sống, nhu cầu sử dụng và định hướng tài chính của từng khách hàng. Mỗi loại căn hộ tại Kiều by KITA đều được thiết kế cho một nhóm khách hàng riêng, đảm bảo ai cũng có thể tìm thấy “tổ ấm lý tưởng” của mình trong không gian boutique cao cấp này.
Đối với các cặp đôi trẻ hoặc người độc thân, căn 2 phòng ngủ là lựa chọn hoàn hảo. Với diện tích vừa phải, thiết kế mở và tiện nghi hiện đại, loại căn này mang đến cảm giác ấm cúng nhưng không gò bó. Những căn tầng trung từ tầng 15–18 được xem là vị trí “vàng” – vừa đủ cao để có tầm nhìn thoáng đãng, lại thuận tiện di chuyển hàng ngày. Đây cũng là nhóm căn hộ có chi phí hợp lý, phù hợp với những người trẻ muốn sở hữu không gian riêng đầu tiên giữa trung tâm Sài Gòn mà vẫn đảm bảo phong cách sống sang trọng.

Với gia đình có con nhỏ hoặc người lớn tuổi, dòng 3 phòng ngủ sẽ là lựa chọn lý tưởng. Không gian rộng rãi, phòng ngủ riêng biệt và khu bếp lớn giúp sinh hoạt chung trở nên thoải mái, ấm cúng. Các căn 3 phòng ngủ của Kiều by KITA còn có phòng đa năng – có thể dùng làm phòng học, phòng làm việc hoặc không gian đọc sách yên tĩnh cho cả gia đình. Tầng trung và tầng cao (từ tầng 17–22) là lựa chọn được ưa chuộng vì vừa có tầm nhìn đẹp, vừa tránh tiếng ồn.

Với khách hàng yêu thích sự tự do và phong cách sống phóng khoáng, các căn Duplex ở tầng 24–25 chính là “resort trên không” thật sự. Không gian thông tầng, trần cao và tầm nhìn 360° tạo cảm giác rộng mở, thư thái. Đây là lựa chọn dành cho những ai mong muốn một không gian khác biệt – vừa sang trọng để tiếp khách, vừa đủ riêng tư để thư giãn. Đặc biệt, các gia đình có con lớn hoặc những người làm việc trong lĩnh vực sáng tạo sẽ rất phù hợp, bởi layout thông tầng giúp tách biệt rõ khu làm việc – nghỉ ngơi mà vẫn giữ sự kết nối tự nhiên trong không gian sống.

Penthouse lại là “đỉnh cao” dành cho những người thành đạt, yêu thích sự riêng tư tuyệt đối và muốn khẳng định phong cách sống thượng lưu. Với diện tích hơn 300m², hồ bơi riêng, sân vườn trên mái và tầm nhìn toàn cảnh sông Sài Gòn, Penthouse không chỉ là nơi ở mà còn là tuyên ngôn về vị thế. Các căn này đặc biệt phù hợp với doanh nhân, chuyên gia nước ngoài hoặc những ai muốn sở hữu bất động sản độc bản tại trung tâm Quận 5 – khu vực vốn đã khan hiếm sản phẩm cao cấp thật sự.

Cuối cùng, nhà đầu tư cho thuê hoặc đầu tư sinh lời nên tập trung vào các căn 2 và 3 phòng ngủ. Đây là loại hình có nhu cầu thuê cao, đặc biệt từ nhóm chuyên gia, giảng viên quốc tế và gia đình trẻ làm việc quanh khu Quận 1 – Quận 5. Nhờ vị trí trung tâm, pháp lý rõ ràng và layout tối ưu, các căn này không chỉ dễ cho thuê mà còn giữ giá tốt khi thị trường biến động.
Tóm lại, Kiều by KITA không chỉ đa dạng loại hình căn hộ, mà mỗi layout còn kể một câu chuyện riêng – phù hợp cho từng giai đoạn của cuộc sống. Dù bạn là người trẻ khởi đầu hành trình, gia đình đang tìm chốn an cư, hay nhà đầu tư tìm sản phẩm bền vững, Tường Phát Land tin rằng trong từng tầng, từng căn của Kiều by KITA đều có “một phiên bản hoàn hảo” dành riêng cho bạn.

Từ góc nhìn chuyên môn, MẶT BẰNG LAYOUT CĂN HỘ KIỀU BY KITA QUẬN 5 là sự kết hợp hài hòa giữa kiến trúc thông minh, tiện ích tối ưu và phong thủy hợp lý. Từng chi tiết – từ hành lang, sảnh đón đến cách bố trí phòng – đều được tính toán kỹ để mang lại trải nghiệm sống đẳng cấp cho cư dân.
Tường Phát Land khuyến nghị khách hàng khi chọn căn nên luôn đối chiếu bản vẽ layout thực tế, kiểm tra hướng gió, ánh sáng và khả năng mở rộng nội thất. Đừng chỉ nhìn diện tích hay giá bán – bởi layout chính là linh hồn của căn hộ, quyết định cảm xúc và giá trị thật sự của không gian sống.
Liên hệ ngay với Tường Phát Land nếu bạn còn bất kì thắc mắc về dự án này nhé!
Thông tin liên hệ Tường Phát LAND:
Hotline: 0909.61.45.69
Website: https://tuongphatland.com/
Fanpage: https://www.facebook.com/tuongphatland
Youtube: https://www.youtube.com/@tuongphatland